Proiect casa pe structura metalica 169-154
4 camere + 3 bai
vezi cum construim in toata tara
proiectare 2449€ cu tva
cu arhitect autor Eniko Roman
constructie 89413€ cu tva
(pachet Standard)
calculatorul de pret iti arata ce includem:
Intrebari frecvente
Ce cuprinde pretul de constructie afisat pentru pachet Standard?
Pentru a vedea ce cuprinde pachetul Standard, te invitam sa folosesti calculatorul de pret apasand butonul „Calculeaza pretul constructiei” din pagina proiectului de casa dorit.
Dupa ce vei alege stadiul constructiei, selecteaza „DA (recomandat)” cand ti se propune vizualizarea pachetelor. Astfel, vei putea vedea o prezentare interactiva a pachetului Standard si a celorlalte pachete disponibile.
De ce nu este afisat pretul la cheie in pagina?
Pentru ca un astfel de pret ar fi de fapt nerealist. Termenul „la cheie” inseamna lucruri diferite pentru fiecare client in parte:
- unii clienti colaboreaza deja cu arhitectul propriu si nu mai au nevoie de proiectare, alti clienti decid sa-si execute fundatia in regie proprie.
- structura casei poate fi metalica sau pe cadre din beton armat, izolatia difera in functie de preferinte si buget. Noi oferim 5 pachete distincte cu posibilitati de upgrade pentru fiecare.
- finisajele interioare pot fi de calitate medie sau premium (cele premium pot chiar pot dubla pretul final in functie de confortul dorit ex. marmura, tapet, parchet stratificat etc).
- incalzirea prin pardoseala este optionala la fel ca si alte lucrari similare (pompa de caldura / panouri fotovoltaice etc).
- taxele de transport si cazare difera in functie de locatia obiectivului.
Asadar, pretul "la cheie" variaza drastic in functie de fiecare client. Prin urmare, afisam in pagina proiectului doar pretul pachetului Standard, ca punct de plecare (nu include proiectare, fundatie, finisaje, transport si alte lucrari optionale). Solutia noastra sa obtii oferta completa este calculatorul de pret: utilizeaza butonul "Calculeaza pretul constructiei" si iti poti configura locuinta exact cum vrei, pas cu pas, in functie de bugetul, preferintele si prioritatile tale, la stadiul de finalizare dorit.
Preturile din calculatorul de pret sunt actualizate?
Primim aceasta intrebare zilnic – si e perfect normal! Raspunsul este DA, preturile sunt mereu actualizate. Tocmai acesta este si motivul pentru care am creat calculatorul de pret: sa oferim mereu informatii corecte si la zi.
Aplicatia fiind conectata direct la bursa materialelor, preturile se ajusteaza automat in functie de inflatie si schimbarile din piata. Asadar, poti avea incredere ca preturile afisate in calculatorul de pret reflecta fidel costurile reale din momentul ofertarii.
Mai mult, oferta generata este valabila strict in ziua respectiva (blocarea pretului se realizeaza doar prin semnarea unui contract). Pentru actualizari ulterioare de oferta, va rugam sa utilizati din nou calculatorul de pret!
Pot fi modificate proiectele de pe site? Se schimba pretul in functie de modificari?
Da, pot fi modificate. Acestea sunt de fapt idei / concepte initiale de design. Reprezinta o sursa de inspiratie, un punct de plecare spre proiectul final dorit.
- Vrei sa schimbi doar organizarea interioara? Nicio problema – pretul va ramane acelasi, deoarece toate calculele se fac la metru patrat construit.
- Vrei sa maresti sau sa reduci suprafata? Poti face asta chiar de la primul pas in calculatorul de pret! Costurile se vor ajusta automat, iar daca mai vrei sa testezi alte variante, poti reveni la pasii anteriori pentru o noua simulare de pret.
- Ce iti recomandam noi? Concentreaza-te pe cati metri patrati iti doresti si pe cat vrei sa investesti. Detaliile de compartimentare le vei stabili oricum ulterior impreuna cu arhitectul contractat.
 
Acceptati credit ipotecar?
Da, acceptam. Pe pagina de sumar din calculatorul de pret (la final unde poti vedea pretul total), vei gasi in partea de jos mai multe butoane utile, inclusiv un buton cu prezentarea procedurii complete: „Creditul ipotecar pe scurt”.
Am facut o simulare in calculatorul de pret si doresc o vizionare, cum procedez?
In pasul final al calculatorului de pret (urmatoarea pagina dupa sumar), introdu datele tale de contact si programeaza-ti o vizita la showroom-ul nostru din Snagov.
Poti atasa si documentatia terenului, proiectul sau schitele pentru arhitectul nostru (recomandat). Vei fi contactat telefonic de un inginer pentru a confirma programarea. Din cauza programului aglomerat din santiere, vizitele se pot face doar pe baza de programare.
Specificatii
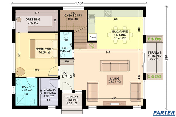
169-154 este un proiect casa cu mansarda 3 dormitoare conceput pentru o familie formata din 6 membri. Constructia este compartimentata pe 2 nivele astfel:
- Planul parterului:
- un living generos conectat deschis la bucataria care contine si zona de dining
- un grup sanitar comun, pozitionat central pentru acces facil
- o camera tehnica amplasata in proximitatea accesului principal
- un dormitor matrimonial cu baie proprie si dressing
 
- Planul etajului:
- 2 dormitoare simetrice, dotate cu pat dublu si birou pentru lucru de acasa
- o logie de aproximativ 4 mp, accesibila din dormitorul situat in partea dreapta a planului
- o baie comuna dotata cu cada, accesibila din holul central
 
Din punct de vedere estetic, casa pe structura metalica de 169 mp are un aspect modern. Fatadele sunt predominate de tonuri in culori deschise, cu accente gri antracit in zona muchiilor, zonelor vitrate, soclului si acoperisului. Acest proiect de casa cu mansarda ofera un raport excelent intre costuri, spatiu si estetica moderna, fiind potrivit atat pentru mediul urban, cat si pentru zone rezidentiale linistite.
 
                 
                 
                 
                 
                 
                 
                 
                 
                 
                 
                 
                 
                 
                