Trasare sapatura si turnare beton in santuri casa cu etaj Bucuresti


In imagini sunt prezentate etape ale executiei fundatiei. Prima faza este trasarea fundatiei, care asigura amplasarea corecta a elementelor conform proiectului.
Urmeaza sapatura, efectuata pana la cota stabilita, dupa care se toarna betonul mort in santuri.
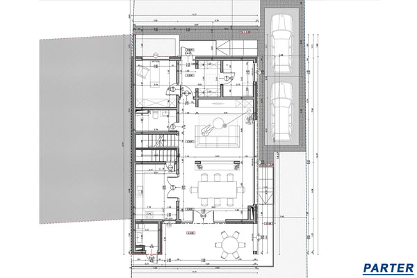
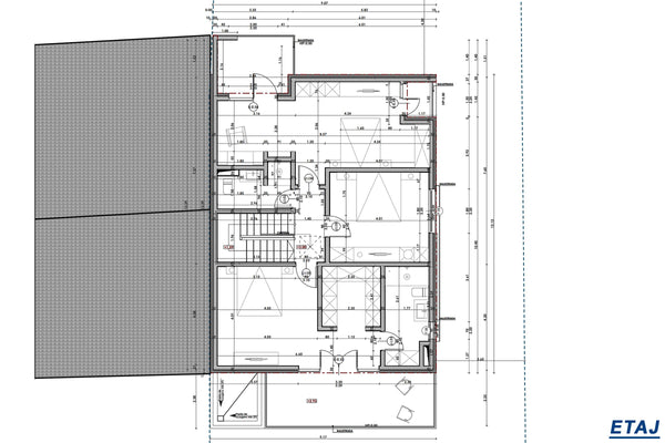
Ultima etapa prezentata este pregatirea armaturii pentru grinzile de fundare, executata conform planurilor fundatiei. Proiectul de fundatie, proiectul de structura, planurile si fatadele casei sunt atasate in galeria asociata.