Structura si inchideri la exterior pereti casa parter in Cernica


In galerie se pot vizualiza urmatoarele etape ale lucrarii:
- montaj structura metalica
- placare cu strat de fibrociment
- tencuiala decorativa aplicata peste stratul de izolatie format din vata bazaltica si masa de spaclu.
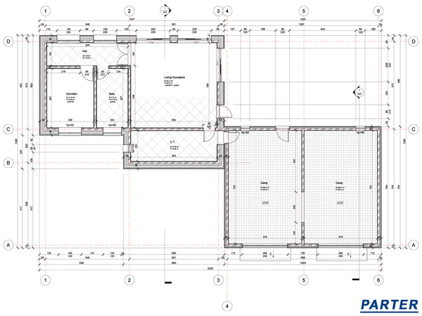
Pentru referinte, am atasat si proiectul acestei constructii.