Proiect casa pe structura metalica 123-140
3 camere + 1 baie
vezi cum construim in toata tara
proiectare 1785€ cu tva
cu arhitect autor Eniko Roman©
constructie 62756€ cu tva
pentru pachet Standard
calculatorul de pret iti arata ce include:
Ai intrebari despre pretul afisat?
Ce cuprinde pachetul Standard de constructie in pretul afisat?
Pentru a vedea ce cuprinde pachetul Standard, te invitam sa accesezi calculatorul de pret folosind butonul „Calculeaza pretul constructiei”.
Dupa ce vei alege stadiul dorit al constructiei (pasul 4), aplicatia iti va cere sa confirmi daca vrei sa vezi prezentarea pachetelor disponibile. Selecteaza „DA (recomandat)”.
Vei parcurge o prezentare interactiva ce iti arata, pas cu pas, ce este inclus in pachetul Standard si cum se compara cu celelalte pachete din oferta noastra.
De ce nu este afisat pretul la cheie in pagina?
Pentru ca un astfel de pret ar fi de fapt nerealist.
Termenul „la cheie” inseamna lucruri diferite pentru fiecare:
- unii clienti au deja arhitect si nu au nevoie de proiectare, alti clienti aleg sa-si execute fundatia in regie proprie.
- structura casei si izolatia difera in functie de preferinte si buget, noi oferim mai multe pachete distincte.
- finisajele interioare pot chiar dubla pretul final in functie de confortul dorit (ex. marmura, tapet, parchet stratificat etc).
- incalzirea prin pardoseala este optionala la fel ca si alte lucrari similare, taxele de transport si cazare difera in functie de locatia obiectivului etc.
Asadar, pretul "la cheie" variaza drastic in functie de client. Prin urmare, afisam in pagina proiectului doar pretul pachetului Standard, ca punct de plecare (fara proiectare, fundatie, finisaje, transport si alte lucrari optionale).
Solutia noastra sa obtii oferta completa este calculatorul de pret: utilizeaza butonul "calculeaza pretul constructiei" si iti poti configura locuinta exact cum vrei, pas cu pas, in functie de bugetul, preferintele si prioritatile tale, la stadiul de finalizare dorit.
Preturile din calculatorul de pret sunt actualizate?
Primim aceasta intrebare zilnic – si e perfect normal! Raspunsul este: DA, preturile sunt mereu actualizate. Tocmai acesta este si motivul pentru care am creat calculatorul de pret: sa oferim mereu informatii corecte si la zi.
Aplicatia fiind conectata direct la bursa materialelor, preturile se ajusteaza automat in functie de inflatie si schimbarile din piata. Asadar, poti avea incredere ca preturile afisate in calculatorul de pret reflecta fidel costurile reale din momentul ofertarii.
Mai mult, oferta generata este valabila strict in ziua respectiva (blocarea pretului se realizeaza doar prin semnarea unui contract). Pentru actualizari ulterioare de oferta, va rugam sa utilizati din nou calculatorul de pret!
Pot fi modificate proiectele de pe site? Se schimba pretul in functie de modificari?
Da, pot fi modificate. Acestea sunt de fapt idei / concepte initiale de design. Reprezinta o sursa de inspiratie, un punct de plecare spre proiectul final dorit.
Vrei sa schimbi doar organizarea interioara? Nicio problema – pretul va ramane acelasi, deoarece toate calculele se fac la metru patrat construit.
Vrei sa maresti sau sa reduci suprafata? Poti face asta chiar de la primul pas in calculatorul de pret! Costurile se vor ajusta automat, iar daca mai vrei sa testezi alte variante, poti reveni la pasii anteriori pentru o noua simulare de pret.
Ce iti recomandam noi? Concentreaza-te pe cati metri patrati iti doresti si pe cat vrei sa investesti. Detaliile de compartimentare le vei stabili oricum ulterior impreuna cu arhitectul contractat.
Acceptati credit ipotecar?
Da, acceptam. Pe pagina de sumar din calculatorul de pret (la final unde poti vedea pretul total), vei gasi in partea de jos mai multe butoane utile, inclusiv un buton cu prezentarea procedurii complete: „Creditul ipotecar pe scurt”.
Am facut o simulare in calculatorul de pret si doresc o vizionare, cum procedez?
In pasul final al calculatorului de pret (urmatoarea pagina dupa sumar), introdu datele tale de contact si programeaza-ti o vizita la showroom-ul nostru din Snagov.
Poti atasa si documentatia terenului, proiectul sau schitele pentru arhitectul nostru (recomandat).
Vei fi contactat telefonic de un inginer pentru a confirma programarea. Din cauza programului aglomerat din santiere, vizitele se pot face doar pe baza de programare.
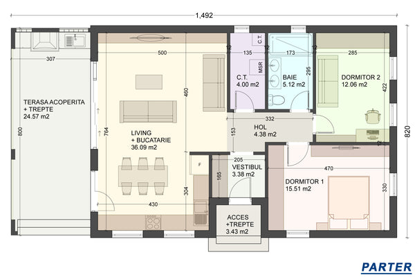
Specificatii
Casa pe structura metalica de 120mp, model 123-140, ofera un model de organizare spatiala eficienta si contemporana, adaptata nevoilor unei familii de 3 persoane. Configuratia interioara este articulata in jurul unei zone de zi generoase in raport cu suprafata construita, care functioneaza ca un spatiu deschis, incluzand bucataria, zona de dining si livingul propriu-zis. Aceasta abordare deschisa faciliteaza comunicarea si interactiunea cotidiana, contribuind totodata la maximizarea iluminarii naturale.
Zona de noapte este accesibila printr-un hol central si include un dormitor matrimonial proiectat cu pat dublu si un dormitor destinat copilului, echipat cu o canapea extensibila. Ambele incaperi sunt deservite de o baie comuna, dotata cu cada, ceea ce aduce un plus de functionalitate intr-un spatiu compact.
Accesul principal in locuinta se face printr-o zona acoperita, care conduce intr-un vestibul prevazut cu spatii de depozitare, contribuind la o organizare eficienta a fluxurilor functionale. De asemenea, locuinta integreaza un spatiu tehnic dedicat centralei termice si echipamentelor auxiliare precum masina de spalat sau spatiu de depozitare.
Din punct de vedere estetic, acest proiect de casa parter cu 3 camere este pus in valoare printr-un tratament de fatada modern, caracterizat prin insertii de caramida aparenta in zonele vitrate, accentuate prin ancadramente in nuante inchise, regasite si la nivelul soclului, ceea ce contribuie la o coerenta vizuala si un aspect contemporan.
 
                 
                 
                 
                 
                 
                 
                 
                 
                 
                 
                 
                 
                 
                 
                 
                 
                 
                 
                 
                