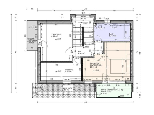
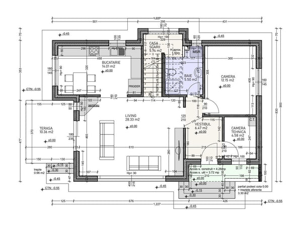
Montaj structura metalica proiect de casa cu etaj 206 mp


Montaj structura metalica 140 mm pereti exteriori si 100 mm pereti de compatimentare. Proiectul de casa este realizat in echiparea Gold. Constructia are 2 nivele, s-au asamblat conform proiectului de structura. Urmeaza montajul fermelor de acoperis.