Montaj structura metalica casa parter model 130-093 in Snagov


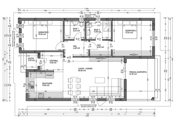
Montaj casa pe structura metalica cu regim de inaltime parter din profile de tip C, dublu zincat, ambutisat la rece, cu agrement european. Constructia prezinta 2 camere si un living spatios, inglobate intr-o suprafata de 130 mp. Proiectul de structura este atasat in galerie.