Montaj parter structura metalica usoara proiect de casa P+1E


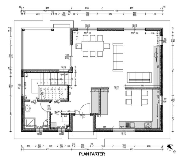
Montaj parter structura metalica din profile de 100 mm latime, proiect de casa P+1E de 194 metri patrati. Urmeaza montajul etajului si scara interioara a cladirii. Volumetria proiectului de rezistenta a structurii este atasata in galeria foto.