Montaj ferme acoperis si placari exterioare casa metalica pe 2 nivele
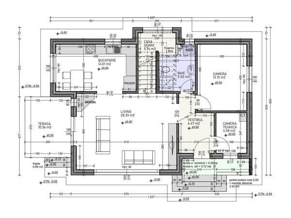
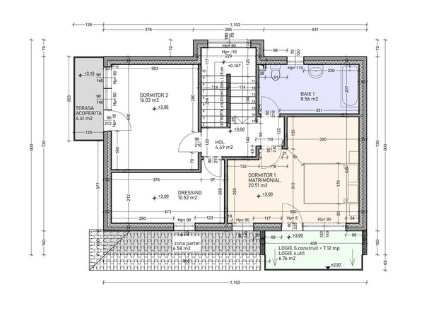
Etapa de finalizare a structurii metalice si anume montajul fermelor acoperisului. Placarile exterioare ale peretilor sunt realizate din fibrociment de 10 mm. Placarea acoperisului s-a realizat din OSB de 15 mm grosime. Acest proiect are o suprafata de 206 metri si este conceput pe 2 nivele.
 
                 
                 
                 
                 
                 
                 
                 
                 
                 
                 
                 
                 
                 
                 
                 
                 
                 
                 
                 
                 
                 
                