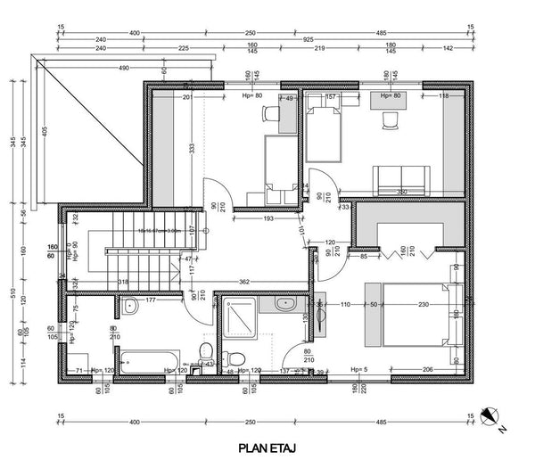
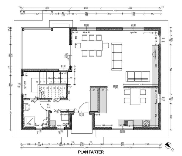
Montaj etaj structura metalica usoara proiect de casa P+1E


Montaj etaj structura metalica din profile de 100 mm latime, proiect de casa P+1E de 194 metri patrati. Urmeaza montajul scarii interioare a cladirii. Proiectului de structura metalica este prezentat in galerie.