Constructie casa zidarie 285-108

284.73 mp (12.44 x 11.22 ml)
5 camere + 3 bai
vezi cum construim in toata tara
proiectare 4134€ cu tva
cu arhitect autor Eniko Roman©
constructie 141382€ cu tva
pentru pachet Standard
calculatorul de pret iti arata ce include:
Ai intrebari despre pretul afisat?

Ce cuprinde pachetul Standard de constructie in pretul afisat?
Pentru a vedea ce cuprinde pachetul Standard, te invitam sa accesezi calculatorul de pret folosind butonul „Calculeaza pretul constructiei”.
Dupa ce vei alege stadiul dorit al constructiei (pasul 4), aplicatia iti va cere sa confirmi daca vrei sa vezi prezentarea pachetelor disponibile. Selecteaza „DA (recomandat)”.
Vei parcurge o prezentare interactiva ce iti arata, pas cu pas, ce este inclus in pachetul Standard si cum se compara cu celelalte pachete din oferta noastra.

De ce nu este afisat pretul la cheie in pagina?
Pentru ca un astfel de pret ar fi de fapt nerealist.
Termenul „la cheie” inseamna lucruri diferite pentru fiecare:
- unii clienti au deja arhitect si nu au nevoie de proiectare, alti clienti aleg sa-si execute fundatia in regie proprie.
- structura casei si izolatia difera in functie de preferinte si buget, noi oferim mai multe pachete distincte.
- finisajele interioare pot chiar dubla pretul final in functie de confortul dorit (ex. marmura, tapet, parchet stratificat etc).
- incalzirea prin pardoseala este optionala la fel ca si alte lucrari similare, taxele de transport si cazare difera in functie de locatia obiectivului etc.
Asadar, pretul "la cheie" variaza drastic in functie de client. Prin urmare, afisam in pagina proiectului doar pretul pachetului Standard, ca punct de plecare (fara proiectare, fundatie, finisaje, transport si alte lucrari optionale).
Solutia noastra sa obtii oferta completa este calculatorul de pret: utilizeaza butonul "calculeaza pretul constructiei" si iti poti configura locuinta exact cum vrei, pas cu pas, in functie de bugetul, preferintele si prioritatile tale, la stadiul de finalizare dorit.

Preturile din calculatorul de pret sunt actualizate?
Primim aceasta intrebare zilnic – si e perfect normal! Raspunsul este: DA, preturile sunt mereu actualizate. Tocmai acesta este si motivul pentru care am creat calculatorul de pret: sa oferim mereu informatii corecte si la zi.
Aplicatia fiind conectata direct la bursa materialelor, preturile se ajusteaza automat in functie de inflatie si schimbarile din piata. Asadar, poti avea incredere ca preturile afisate in calculatorul de pret reflecta fidel costurile reale din momentul ofertarii.
Mai mult, oferta generata este valabila strict in ziua respectiva (blocarea pretului se realizeaza doar prin semnarea unui contract). Pentru actualizari ulterioare de oferta, va rugam sa utilizati din nou calculatorul de pret!

Pot fi modificate proiectele de pe site? Se schimba pretul in functie de modificari?
Da, pot fi modificate. Acestea sunt de fapt idei / concepte initiale de design. Reprezinta o sursa de inspiratie, un punct de plecare spre proiectul final dorit.
Vrei sa schimbi doar organizarea interioara? Nicio problema – pretul va ramane acelasi, deoarece toate calculele se fac la metru patrat construit.
Vrei sa maresti sau sa reduci suprafata? Poti face asta chiar de la primul pas in calculatorul de pret! Costurile se vor ajusta automat, iar daca mai vrei sa testezi alte variante, poti reveni la pasii anteriori pentru o noua simulare de pret.
Ce iti recomandam noi? Concentreaza-te pe cati metri patrati iti doresti si pe cat vrei sa investesti. Detaliile de compartimentare le vei stabili oricum ulterior impreuna cu arhitectul contractat.

Acceptati credit ipotecar?
Da, acceptam. Pe pagina de sumar din calculatorul de pret (la final unde poti vedea pretul total), vei gasi in partea de jos mai multe butoane utile, inclusiv un buton cu prezentarea procedurii complete: „Creditul ipotecar pe scurt”.

Am facut o simulare in calculatorul de pret si doresc o vizionare, cum procedez?
In pasul final al calculatorului de pret (urmatoarea pagina dupa sumar), introdu datele tale de contact si programeaza-ti o vizita la showroom-ul nostru din Snagov.
Poti atasa si documentatia terenului, proiectul sau schitele pentru arhitectul nostru (recomandat).
Vei fi contactat telefonic de un inginer pentru a confirma programarea. Din cauza programului aglomerat din santiere, vizitele se pot face doar pe baza de programare.

Specificatii

Suprafata totala (mp): 284.73
Suprafata desfasurata casa (mp): 240.52
Suprafata terase + balcoane (mp): 44.21
Amprenta (ml): 12.44 x 11.22
Regim de inaltime (nr.): 2 nivele
Suprafata casa la parter (mp): 122
Terase neacoperite la parter (mp): 27.43
Suprafata casa la etaj 1 (mp): 118.52
Balcoane acoperite la etaj 1 (mp): 16.78

Casa BCA sau caramida model 285-108 este remarcabila datorita organizarii ingenioase si elaborarii atente a spatiilor ce insumeaza 285mp. Acest plan arhitectural reuseste sa imbine potrivit utilitatea cu designul atragator in stil modern. Aceasta constructie casa zidarie cu balcoane este dispusa pe 2 nivele.
Spatiile parterului sunt concepute astfel: 30 mp alocati unui living generos; organizata intr-o incapere separata bucataria cu usi glisante ce include si o zona de luat masa; un dormitor convertibil in birou; o camera tehnica; un grup sanitar si o camara. Camera de depozitare este integrata sub scara si are acces direct din bucatarie.
Intrarea principala in cladire este acoperita, are trepte pe 3 laturi si acces catre un vestibul. Accesul secundar se realizeaza de pe a doua terasa pentru care arhitectul a prevazut acoperis reprezentat de unul dintre balcoane si pergola. Aceasta terasa permite intrarea direct in bucatarie. Suprafata generoasa de aproximativ 18 mp a acestei zone permite utilizarea si in scop de relaxare.
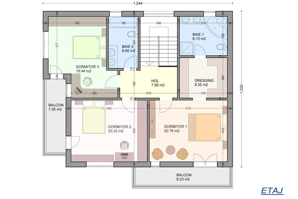
Zona de odihna este pozitionata la etaj. Trei dormitoare pot gazdui pana la 6 persoane. Dintre aceste incaperi una este desemnata pentru dormitorul principal ce are incluse un dressing si o baie proprie. Inca doua dormitoare sunt accesibile printr-un hol central, ce permite si accesul la o baie comuna. Dormitorul matrimonial si unul din cele secundare beneficiaza de acces pe cate unul dintre cele 2 balcoane acoperite. Compartimentarea celui de-al treilea dormitor permite amenajarea unui birou pe colt.
Fatadele acestui model de casa cu terase exterioare sunt decorate cu placari de lemn ce se imbina armonios cu nuanta gri a celorlalte elemente distinctive, respectiv soclu, tamplaria si acoperisul.

Sfaturi si ponturi

Avantaje Wolf Construct

Garantie 75 ani
Credit ipotecar
Totul cu un singur constructor
Calculator de pret la zi
Proiectare personalizata
Acoperire nationala
Casa la cheie 150-180 zile
Flexibilitate echipari
Vizionari constructii
Eficienta energetica
Rezistenta seismica
Certificate conformitate

Curios cat te costa casa ta?

  • 1. Configureaza casa

    Introdu suprafetele dorite pentru fiecare nivel in parte. Preturile vor fi calculate la metru patrat construit.

  • 2. Proiect si fundatie

    Alege daca doresti ca noi sa iti proiectam constructia si sa realizam fundatia sau preferi sa externalizezi aceste etape.

  • 3. Pachet de constructie

    Iti prezentam pachetele si ulterior il alegi pe cel potrivit. Obtii pretul, iti incarci documentatia si te programezi online.