Armare si turnare placa fundatie casa parter in Ilfov Snagov


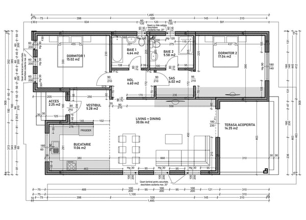
Armare cu plasa sudata cu ochiuri de 10 cm si calareti, turnare placa final din beton tip B250. Constructia are o suprafata de 130 mp, regim de inaltime parter. Planurile si volumetria proiectului se regasesc in galerie.