Montaj ferme acoperis si placari exterioare casa metalica pe 2 nivele


Etapa prezentata documenteaza montajul fermelor de acoperis si realizarea placarilor exterioare pentru o locuinta individuala pe structura metalica usoara, cu regim de inaltime P+1. Constructia se afla in stadiul de inchideri exterioare, iar lucrarile au fost executate conform proiectului de rezistenta si detaliilor tehnice aferente sistemului constructiv ales.

Structura metalica este realizata din profile din otel zincat ambutisat la rece, cu latimi de 140 mm pentru peretii exteriori si 100 mm pentru peretii de compartimentare. In aceasta faza au fost montate fermele metalice ale acoperisului, aliniate si fixate conform cotelor din proiect, asigurand rigidizarea ansamblului structural si pregatirea suportului pentru straturile ulterioare ale acoperisului.

Placarea exterioara a peretilor a fost realizata cu placi din fibrociment cu grosimea de 10 mm, montate mecanic pe structura metalica. Aceste placi au rol de inchidere exterioara, conferind planeitate, protectie suplimentara si suport pentru sistemul de termoizolatie ce urmeaza a fi aplicat. La nivelul acoperisului, s-a realizat placarea cu OSB de 15 mm grosime, asigurand un suport continuu pentru stratificatia specifica acoperisului.

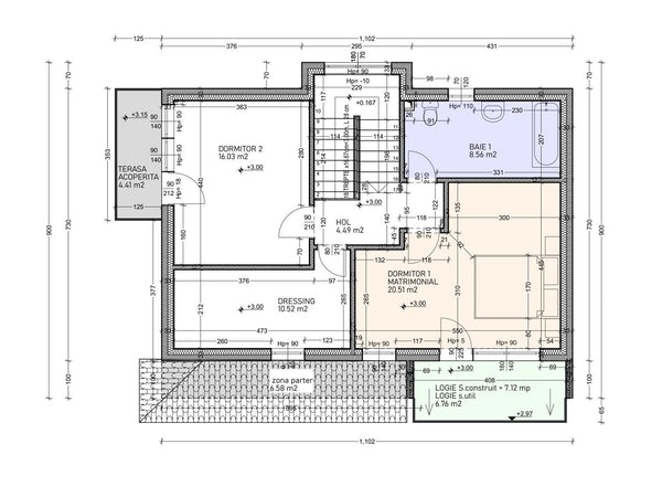
Acest proiect casa cu etaj are o suprafata construita totala de 206,59 mp. Suprafata construita a casei este de 180,44 mp, iar suprafata utila este de 131,23 mp. Fundatia, impreuna cu terasele de la parter si scarile de acces, ocupa o suprafata de 112,55 mp.

Galeria foto surprinde succesiunea etapelor de montaj, de la ridicarea structurii metalice pana la placarile exterioare in desfasurare.