Turnare placa fundatie pentru proiect casa cu etaj 306mp


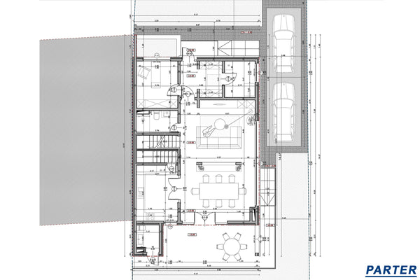
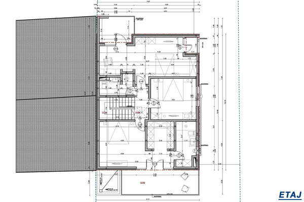
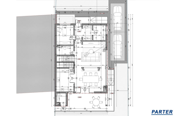
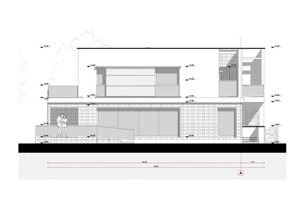
Turnare placa finala fundatie cu beton C16/20 pentru o locuinta individuala moderna, cu regim de inaltime P+E si o suprafata desfasurata de 306.41 mp. Proiectul, situat in sectorul 6, Bucuresti, este executat pe structura metalica usoara, utilizand profile zincate tip C si U de 140 mm pentru peretii exteriori si 90 mm pentru compartimentarile interioare. Aceasta etapa de infrastructura pune bazele unei constructii complexe ce include un acoperis tip terasa circulabila si o configuratie spatiala optimizata: parterul ocupa 164.99 mp (incluzand terasele si scarile de acces), iar etajul insumeaza 141.42 mp, unde sunt integrate balcoane si terase generoase.

Lucrarile de executie respecta un grafic de timp riguros, cu un termen de finalizare de 90 de zile, beneficiarii optand pentru o echipare personalizata adaptata nevoilor specifice de locuire. Dupa maturarea betonului in placa de fundatie, procesul continua cu montajul structurii metalice prefabricate, asamblarea cadrelor la nivelul parterului si pozitionarea grinzilor pentru planseul intermediar. Rigidizarea ansamblului se realizeaza prin contravantuiri strategice, calculate sa preia incarcarile verticale si orizontale conform proiectului de rezistenta verificat MLPAT.

Sistemul constructiv al acestui proiect de casa cu etaj este completat prin inchideri exterioare din placi de fibrociment de 10 mm, care asigura planeitatea suprafetelor si suportul ideal pentru termosistemul din vata bazaltica. Aceasta solutie tehnica, ce include armarea cu masa de spaclu si plasa din fibra de sticla, garanteaza o eficienta energetica superioara si o durabilitate crescuta a anvelopei cladirii.

Atat planurile de arhitectura, cat si proiectele de structura detaliate (fundatie + structura cladirii) pot fi consultate in galeria foto de mai jos, oferind o perspectiva completa asupra calitatii executiei Wolf Construct.