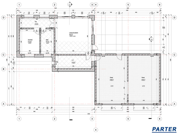
Turnare placa fundatie casa pe structura metalica cu garaj


Turnare placa finala fundatie pentru casa pe structura metalica cu beton tip B250 C16/20. Constructia este formata din 2 corpuri distincte, casa si garaj.
Proiectele de fundatie, structura, arhitectura se pot vizualiza in galerie.