Termoizolatie fundatie cu polistiren extrudat si armatura casa in Bucuresti
Faza de executie prezentata include termoizolarea fundatiei cu polistiren extrudat, aplicarea foliei din polietilena si armarea placii finale.
Etapa urmatoare consta in turnarea placii.
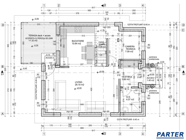
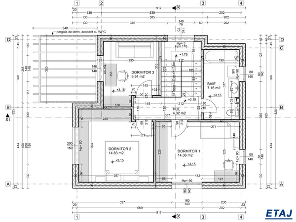
Cladirea are o suprafata de 152mp, din care casa are 140mp si terasele neacoperite 12mp.