Tencuiala decorativa casa metalica 152mp in capitala


Executia tencuielii decorative pentru aceasta casa metalica a fost realizata in stricta conformitate cu proiectul tehnic. Fiecare etapa de lucru a respectat specificatiile privind suportul, stratificarea materialelor si finisajele exterioare, pentru a asigura durabilitate, aderenta si un aspect estetic de calitate. Culoarea si nuantele tencuielii decorative au fost alese de catre beneficiar, astfel incat fatada sa reflecte stilul dorit si sa se integreze armonios in zona construita.

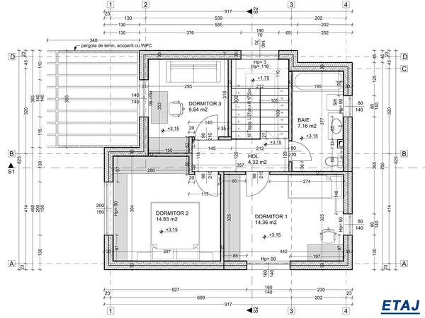
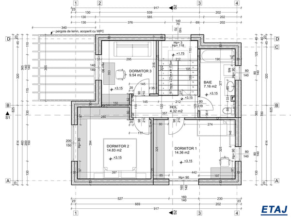
Locuinta este o casa pe structura metalica pe 2 nivele, cu o suprafata desfasurata de aproximativ 152 mp, avand o compartimentare echilibrata si functionala. In completare, constructia beneficiaza de o terasa exterioara cu o suprafata de 12 mp, gandita ca spatiu de relaxare. Sistemul constructiv pe structura usoara ofera avantaje precum rapiditatea executiei, rezistenta sporita si flexibilitatea in configurarea spatiilor interioare.

In galerie sunt prezentate imagini relevante din toate etapele de realizare: proiectul de arhitectura al cladirii, proiectul de structura metalica 3D, precum si fotografii din timpul executiei efective a acestei faze intermediare. Imobilul pe schelet metalic a fost realizat in Bucuresti, fiind un exemplu de proiect casa cu etaj construit modern, eficient si adaptat cerintelor actuale.