Placare pereti cu fibrociment si acoperis cu osb casa parter-etaj


Placare pereti exteriori cu fibrociment de 10mm, strat suport pentru termoizolatia exterioara conceputa din vata bazaltica.
Constructia metalica are urmatoarele specificatii:
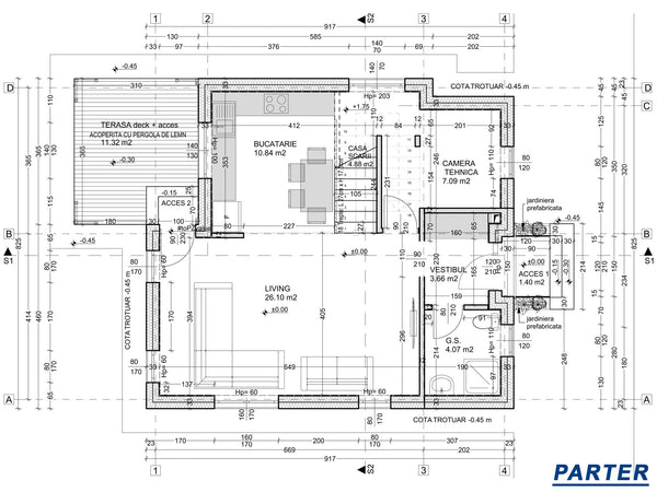
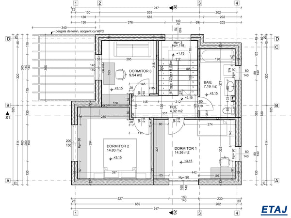
- Suprafata totala (mp): 152.66
- Suprafata desfasurata casa (mp): 140
- Suprafata utila (mp): 106.28
- Suprafata terase (mp): 12.66
- Amprenta (ml): 12.12 x 8.25
- Regim de inaltime (nr.): 2 nivele
- Suprafata casa la parter (mp): 70
- Terase neacoperite la parter (mp): 12.66
- Suprafata casa la etaj 1 (mp): 70
Proiectul de rezistenta al structurii metalice este atasat in galerie.