Montaj structura metalica a etajelor pentru vila stil mediteranean


Montaj structura metalica usoara pentru o vila in stil mediteranean, realizata in judetul Ilfov, parte a unui proiect casa cu 3 etaje (4 nivele) contractat la cheie. Constructia are regim de inaltime Ds+P+2E si este realizata pe o fundatie deja executata, urmand montajul structurii metalice din otel zincat ambutisat la rece. In aceasta etapa sunt prezentate lucrarile de montaj ale structurii portante pentru etaje, executate conform proiectului de rezistenta.

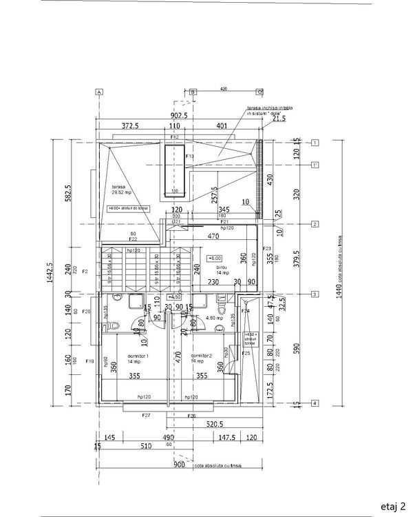
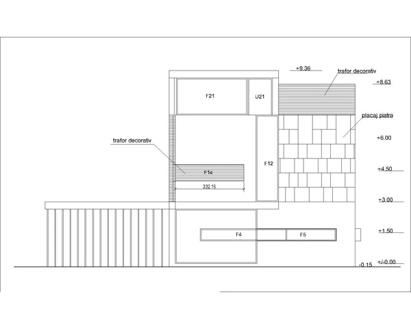
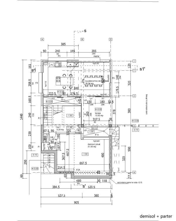
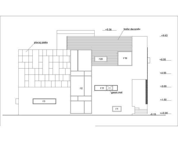
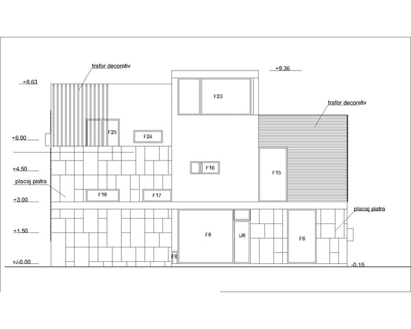
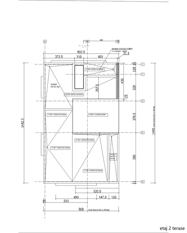
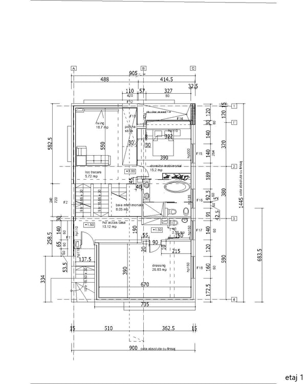
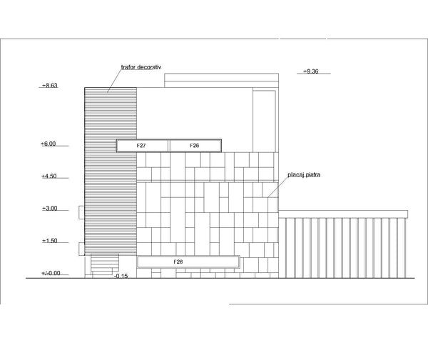
Structura este realizata din profile tip C si U, cu latimi de 100 mm, 140 mm si 200 mm, dimensionate in functie de solicitarile structurale si de compartimentarea cladirii. Suprafata desfasurata construita a cladirii este de 306.58 mp, la care se adauga terasele si balcoanele cu o suprafata de 113.64 mp, rezultand o suprafata totala de 420.22 mp. In galerie sunt documentate etapele succesive de montaj, incluzand ridicarea peretilor structurali, montajul planseelor si realizarea deschiderilor pentru golurile de ferestre si usi.

Lucrarile de montaj s-au desfasurat pe o perioada de aproximativ 10 zile lucratoare, evidentiind avantajele sistemului constructiv pe structura metalica usoara, precum rapiditatea executiei si precizia montajului. Imaginile surprind structura in diferite faze de executie, oferind o perspectiva clara asupra modului de asamblare si a detaliilor constructive aplicate. Aceasta etapa reprezinta un pas esential in dezvoltarea cladirii cu 3 etaje, pregatind constructia pentru inchiderile exterioare si lucrarile ulterioare de compartimentare si finisare.