Montaj casa pe structura metalica P+1E 192mp in Bucuresti


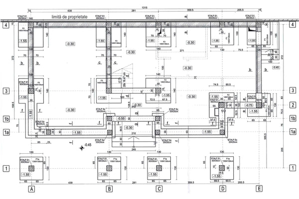
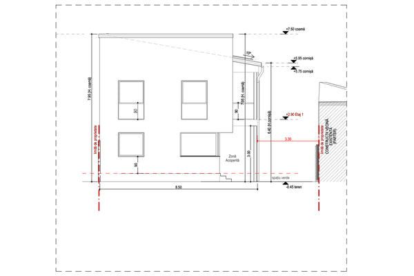
Montaj casa pe structura metalica usoara pentru o locuinta individuala cu regim de inaltime P+1E, realizata in Bucuresti, sector 1, in baza unui proiect personalizat. Constructia are o suprafata desfasurata construita de 191.66 mp si include atat spatii interioare, cat si terase si balcoane. In cadrul acestui proiect, Wolf Construct a executat lucrarile de demolare a imobilului existent, realizarea fundatiei si montajul structurii metalice usoare, conform proiectului de rezistenta.

Structura cladirii este realizata din profile metalice tip C, cu latimea de 140 mm pentru peretii exteriori si 90 mm pentru peretii de compartimentare interioara. Suprafata parterului este de 80.71 mp, la care se adauga terase acoperite si neacoperite, iar la etaj suprafata construita este de 96.72 mp, completata de balcoane acoperite. Montajul structurii metalice a fost realizat etapizat, urmarind alinierea, fixarea si contravantuirea elementelor structurale, astfel incat sa fie asigurata stabilitatea ansamblului in faza de executie.

Galeria foto pentru acest proiect casa cu etaj surprinde etapele succesive de montaj ale structurii metalice și închiderile exterioare cu plăci din fibrociment. Totodată, imaginile documentează și aplicarea stratului de OSB la nivelul acoperișului.

Aceasta etapa reprezinta baza pentru continuarea lucrarilor de inchidere, termoizolare si finisare, fiind adaptata cerintelor unei constructii rezidentiale moderne pe structura metalica.