Demolare imobil vechi trasare sapatura plantare armatura fundatie


Etapa prezentata ilustreaza lucrarile initiale din santier pentru realizarea unei locuinte individuale pe structura metalica usoara, respectiv demolarea imobilului existent si pregatirea terenului pentru noua constructie. Interventia a avut loc in Bucuresti, pe un amplasament urban, necesitand o organizare atenta a lucrarilor si respectarea etapizarii prevazute in proiectul tehnic.

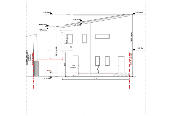
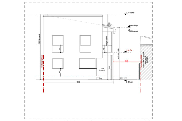
Lucrarile aferente acestui proiect casa cu etaj au inceput cu demolarea controlata a constructiei vechi, urmata de evacuarea materialelor rezultate si curatarea completa a terenului. Trasarea fundatiei s-a executat conform planurilor de arhitectura si proiectului de rezistenta, stabilindu-se axele principale, cotele si limitele sapaturilor. Aceasta faza a fost esentiala pentru pozitionarea corecta a viitoarei fundatii si pentru incadrarea constructiei in parametrii urbanistici ai lotului.

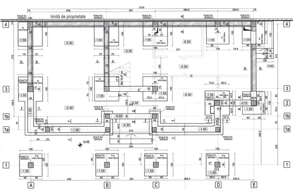
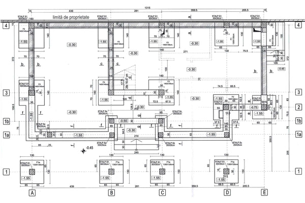
Sapaturile pentru fundatii au fost realizate mecanizat, cu ajustari manuale locale, in functie de configuratia terenului si de adancimile prevazute in documentatie. Ulterior, s-a trecut la plantarea armaturilor in santurile de fundare, utilizand bare din otel beton montate conform detaliilor structurale. Armarea a fost realizata cu respectarea distantelor, suprapunerilor si legaturilor necesare pentru asigurarea continuitatii structurale intre fundatie si viitoarea suprastructura.

Galeria include succesiunea lucrarilor din aceasta faza de inceput: demolare, pregatirea terenului , sapaturi si armarea fundatiei. Aceasta etapa constituie baza intregului proiect, pregatind santierul pentru turnarea fundatiei si dezvoltarea ulterioara a constructiei conform proiectului personalizat.