Constructie elevatii termoizolatie si armare fundatie casa metalica


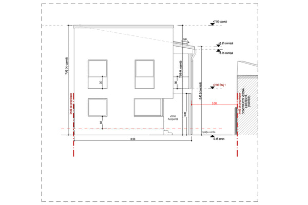
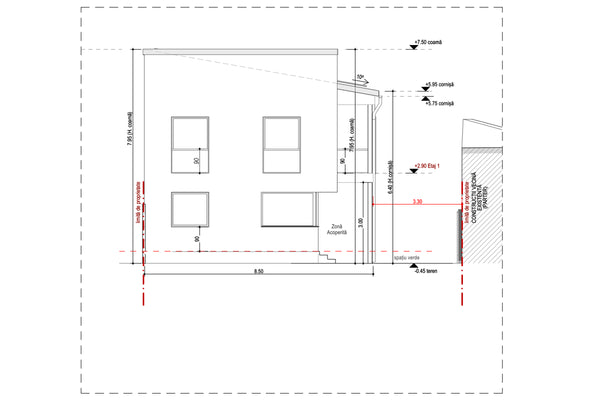
Etapa prezentata documenteaza lucrarile de executie a fundatiei pentru o locuinta individuala pe structura metalica, cu regim de inaltime P+1E, realizata in Bucuresti. Aceasta faza de lucru include realizarea elevatiilor, termoizolarea si armarea placii de fundatie, esentiale pentru asigurarea stabilitatii si durabilitatii intregii constructii.

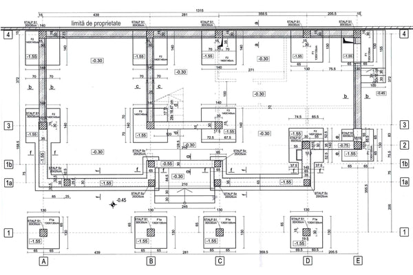
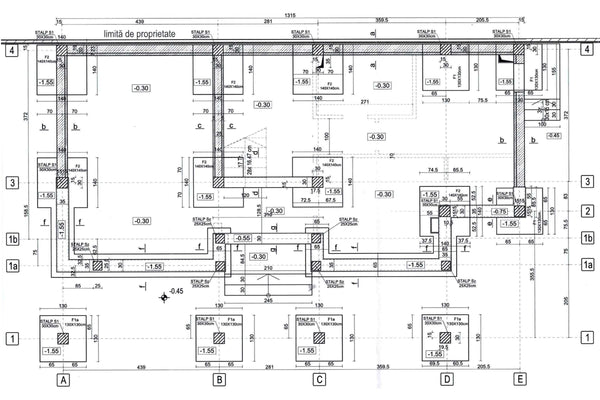
Lucrarile pentru acest proiect casa cu etaj au debutat cu cofrarea elevatiilor fundatiei, urmata de umpluturi (pamant compactat, strat de balast(nisip+pietris). Montajul armaturilor s-a realizat conform proiectului de rezistenta. Armarea grinzilor a fost realizata cu bare din otel beton dispuse in retele longitudinale si transversale, asigurand continuitatea structurala intre fundatie si viitoarea suprastructura metalica.

Placa de fundatie a fost pregatita prin realizarea stratului suport, pozitionarea termoizolatiei si montajul retelei de armare. Aceasta a fost dimensionata pentru a prelua incarcarile unei constructii cu doua niveluri, incluzand suprafata casei la parter de 80.71 mp, terasele acoperite si neacoperite de 5.45 mp, precum si structura etajului cu o suprafata construita de 96.72 mp si balcoane acoperite de 8.78 mp.

Executia s-a realizat etapizat, cu verificarea cotelor, planeitatii si a detaliilor de armare inainte de turnarea betonului. Galeria foto surprinde succesiunea lucrarilor din santier, evidentiind modul de executie conform proiectului tehnic. Aceasta etapa constituie baza pentru montajul ulterior al structurii metalice usoare si pentru dezvoltarea intregului sistem constructiv al locuintei.