Constructie casa zidarie 169-154
4 camere + 3 bai
vezi cum construim in toata tara
proiectare 2449€ cu tva
arhitect Eniko Roman
constructie 89413€ cu tva
(pachet Standard)
calculatorul de pret iti arata ce includem:
Intrebari frecvente
Ce cuprinde pretul de constructie afisat pentru pachet Standard?
Puteti vizualiza pachetul Standard in calculatorul de pret:
- Foloseste butonul „Calculeaza pretul constructiei” din pagina proiectului dorit.
- Raspunde cu DA la intrebarea „Doresti sa vezi prezentarea pachetelor noastre?”.
De ce nu este afisat pretul la cheie in pagina?
Pentru ca un astfel de pret ar fi de fapt nerealist. Termenul „la cheie” inseamna lucruri diferite pentru fiecare client in parte:
- Unii clienti colaboreaza deja cu arhitectul propriu si nu mai au nevoie de proiectare, alti clienti decid sa-si execute fundatia in regie proprie.
- Structura casei poate fi metalica sau pe cadre din beton armat, izolatia difera in functie de preferinte si buget. Noi iti oferim 5 pachete distincte de constructie, unele cu posibilitati de upgrade.
- Finisajele interioare pot fi de calitate medie sau premium — cele premium pot chiar pot dubla pretul final in functie de confortul dorit ex. marmura, tapet, parchet stratificat etc.
- Incalzirea prin pardoseala este optionala la fel ca si alte lucrari similare precum pompa de caldura, panouri fotovoltaice etc.
- Taxele de transport si cazare difera in functie de locatia obiectivului.
Prin urmare, pretul la cheie se stabileste individual pentru fiecare client. In paginile proiectelor de case afisam pretul pachetului Standard, ca punct de plecare si referinta comuna — include doar inchiderile exterioare si inchiderile interioare la alb.
Solutia noastra sa obtii oferta completa:
- Pentru proiecte case disponibile pe site: foloseste butonul "Calculeaza pretul constructiei" din pagina modelului dorit (exemplu mai jos). Suprafetele casei vor fi deja precompletate pentru calculatii de pret, insa le poti ajusta dupa preferinte. Acceseaza modele case si alege-ti un proiect.

- Pentru proiecte case de la zero: foloseste butonul Calculator pret afisat in partea de sus a paginii cu modele case (exemplu mai jos). Vei introduce suprafetele casei manual pentru calculatii de pret.

Preturile din calculatorul de pret sunt actualizate?
Primim aceasta intrebare zilnic. Raspunsul este DA, preturile sunt mereu actualizate. Tocmai acesta este si motivul pentru care am creat calculatorul de pret: sa oferim mereu informatii corecte si la zi.
- Aplicatia este conectata la bursa materialelor si preturile se ajusteaza automat in functie de inflatie si schimbarile din piata. Asadar, poti avea incredere ca preturile afisate reflecta fidel costurile reale din ziua respectiva.
- Blocarea pretului de constructie se realizeaza doar prin semnarea unui contract. Pentru actualizari ulterioare de oferta, va rugam sa utilizati din nou calculatorul de pret!
Construiti in toata tara?
Da, construim in toata tara. Costurile de transport si cazare pentru echipa difera insa in functie de locatia santierului. Acestea sunt calculate automat in functie de distanta, foloseste butonul „Calculeaza pretul constructiei” pentru estimari personalizate.
Pot fi modificate proiectele de pe site? Se schimba pretul in functie de modificari?
Da, pot fi modificate. Acestea sunt de fapt idei, concepte initiale de design. Reprezinta o sursa de inspiratie, un punct de plecare spre proiectul final dorit.
- Vrei sa schimbi doar organizarea interioara? Nicio problema — pretul va ramane acelasi, deoarece toate calculele se fac la metru patrat construit.
- Vrei sa maresti sau sa reduci suprafata? Poti face asta chiar de la primul pas in calculatorul de pret! Costurile se vor ajusta automat, iar daca mai vrei sa testezi alte variante, poti reveni la pasii anteriori pentru o noua simulare de pret.
- Ce iti recomandam noi? Concentreaza-te pe cati metri patrati iti doresti si pe cat vrei sa investesti. Detaliile de compartimentare le vei stabili oricum ulterior impreuna cu arhitectul contractat.
Acceptati credit ipotecar?
Da, acceptam. Pe pagina de sumar din calculatorul de pret poti vedea pretul total. Tot acolo gasesti mai multe butoane utile, printre care si „Creditul ipotecar pe scurt”.
Am facut o simulare in calculatorul de pret si doresc o vizionare, cum procedez?
- Introdu datele tale de contact la final in calculatorul de pret si programeaza-ti o vizita la showroom-ul nostru din Snagov.
- Te va contacta telefonic un inginer pentru a confirma programarea.
Din cauza programului aglomerat din santiere, vizitele se pot face doar pe baza de programare.
Specificatii
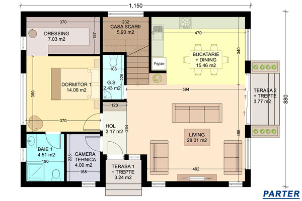
Casa moderna cu mansarda 169-154 este gandita special pentru familii de pana la 6 persoane care isi doresc spatiu, lumina si confort. Casa din zidarie de caramida are o suprafata de 169 mp si ofera rezistenta, eficienta energetica si o estetica contemporana. Designul pune accent pe functionalitate, iar spatiile sunt organizate logic pe 2 niveluri.
- Parterul este zona principala de zi:
- living generos, deschis catre bucatarie si zona de dining - perfect pentru momentele in familie
- baie de serviciu amplasata central, pentru acces rapid din orice camera
- camera tehnica situata aproape de intrare, utila pentru echipamentele casei
- dormitor matrimonial cu dressing si baie proprie, ideal pentru intimitate si confort
- Etajul este dedicat zonei de odihna:
- 2 dormitoare luminoase, fiecare cu spatiu pentru pat dublu si birou de lucru
- o logie de aproximativ 4 mp, accesibila din dormitorul aflat pe partea dreapta a planului
- baie comuna spatioasa, echipata cu cada si accesibila din hol
La exterior, aceasta constructie de casa impresioneaza printr-un design echilibrat si finisaje curate. Fatadele in nuante deschise sunt puse in valoare de detaliile gri antracit din zona ferestrelor, muchiilor si acoperisului, oferind un contrast elegant si contemporan. Proiectul de casa cu mansarda 169-154 combina eficient estetica moderna cu o compartimentare bine gandita, rezultand o locuinta confortabila, economica si usor de intretinut. Este o alegere inspirata pentru cei care cauta un camin spatios si luminos, potrivit atat mediului urban, cat si zonelor rezidentiale mai retrase.